Zum Verkauf steht eine professionelle Fischverkaufsabteilung inklusive passender Vorbereitungsmöbel. Die gesamte Anlage besteht aus hochwertigem Edelstahl und wurde für einen effizienten, hygienischen und gutstrukturierten Arbeitsablauf konzipiert.
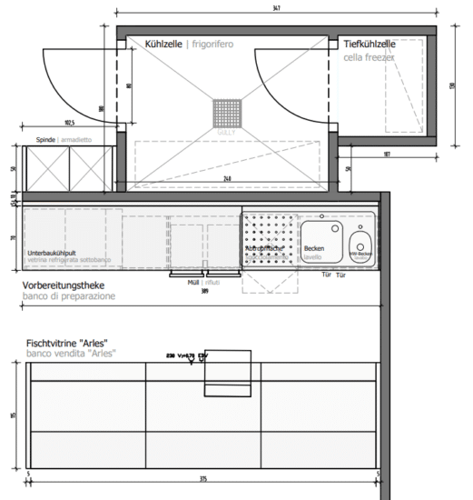
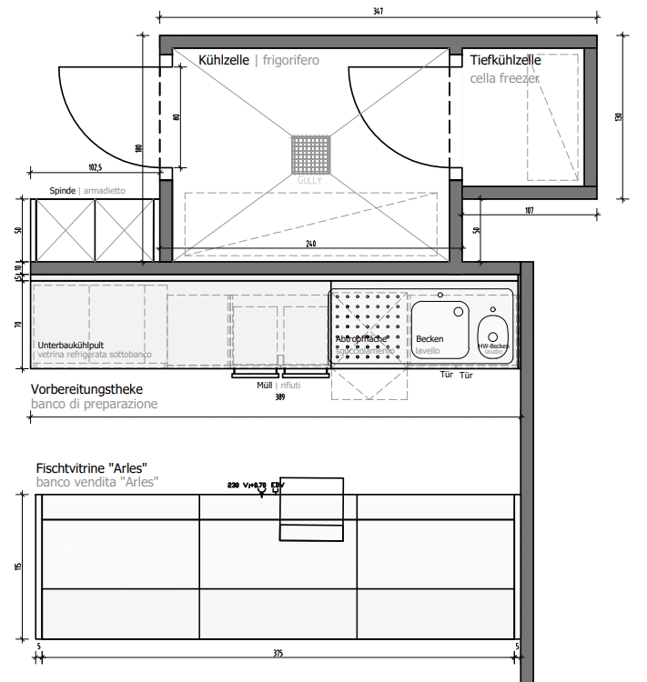
Die Verkaufstheke verfügt über gekühlte Präsentationsflächen, die eine optimale Frische der Waregewährleisten. Eine integrierte Abstellfläche für die Waage erleichtert den Arbeitsalltag, während diedreigeteilte Glasfront eine ansprechende und gut einsehbare Warenpräsentation ermöglicht. Mit einer Gesamtlänge von 3,75 m bietet die Theke ausreichend Platz für ein vielseitiges Sortiment.
Ergänzend zur Thekenanlage umfasst das Angebot eine Kühlzelle mit 3,73 m² sowie eine separate Tiefkühlzelle mit 1,01 m², die ideale Lagerbedingungen für frische und tiefgekühlte Ware bieten.
Zusätzlich steht ein Spind mit 1 m Breite zum Verkauf, der praktischen Stauraum für Arbeitskleidung und persönliche Gegenstände schafft.
Zur Anlage gehört außerdem eine Crasheismaschine und eine umfangreiche Vorbereitungstheke, ebenfalls vollständig aus Edelstahl gefertigt. Sie misst ca. 3,89 m und ist mit einem Unterbaukühlpult samt Steuerung ausgestattet. Zusätzlich stehen Unterbaukästen mit Lade und Tür zur Verfügung, ebenso zwei praktischeKipp-Mülleimer. Das großzügige Spülbecken mit den Maßen 450 × 450 × 250 mm verfügt über eine integrierte Abtropffläche, unter der Platz für eine Spülmaschine vorgesehen ist.
Ein separates Hygiene-Handwaschbecken (240 × 340 × 160 mm) sorgt für normgerechte Arbeitsbedingungen. Alle notwendigen Auslässe für Elektro- und Wasseranschlüsse sind bereits im Möbelintegriert.
Wichtig: Die Fischabteilung wird OHNE Kälteanlage verkauft. Das bedeutet, dass die Kühlmöbel an eine bestehende CO2-Anlage angeschlossen werden müssen, um zu Funktionieren.
Besichtigungen sind jederzeit nach Absprache zu den Öffnungszeiten des MPREIS-Marktes möglich.
Die gesamte Anlage wird ausschließlich an Selbstabholer abgegeben.
Bitte beachten: Der Verkauf erfolgt ohne Garantie, Gewährleistung oder Rücknahme.
Elektronik
Fahrzeuge
Jobs
Immobilien
Marktplatz 









Sie müssen sich Registrieren oder Anmelden um einen Kommentar zu veröffentlichen